Els últims mesos, el govern de Jaume Collboni ha accelerat l’adjudicació de pisos de protecció oficial com a via per garantir l’accés a un habitatge assequible.
A banda de les gegants Illa Glòries (al Fort Pienc) i Illa Acer (a la Marina del Prat Vermell), l’Ajuntament de Barcelona també ha obert les inscripcions per a dues promocions més al Raval:
- Al carrer de Sant Martí, 12-16: s’ofereixen 44 pisos protegits de lloguer assequible.
- al carrer de l’Hospital, 116: s’ofereixen 17 pisos protegits també de lloguer assequible, però que són específicament per a joves de fins a 35 anys.
Quatre pisos minúsculs sense habitació
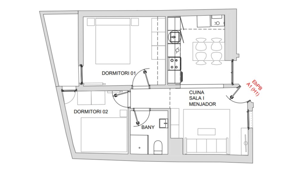
Segons ha pogut saber betevé, la promoció del carrer de l’Hospital ha encès certa polèmica, perquè, dels 17 pisos que treu a concurs l’Ajuntament, quatre habitatges són molt petits, de 21 m² de superfície útil.
És una superfície equivalent a la d’un bungalou de càmping o a la d’una piscina de jardí mitjana.
Els quatre pisos no tenen cap habitació, sinó que preveuen ubicar un llit individual al menjador / sala d’estar, a tocar del sofà, tal com mostren els plànols oficials de l’Ajuntament.

Els quatre immobles (entre els 21,1 m² i els 21,9 m²) tenen una cuina oberta al menjador / sala d’estar (amb accés a un petit balcó) i un bany complet, amb rentamans, dutxa i vàter.
Les rendes que hauran de pagar els qui guanyin l’adjudicació dels pisos oscil·laran entre els 153,61 € i els 159,43 € (als quals caldrà sumar uns 50 € mensuals més, en concepte de l’IBI i de les despeses comunitàries).
Qui pot optar als pisos del carrer de l’Hospital? El requisit indispensable és estar registrat com a sol·licitant d’habitatge protegit a Barcelona. Pel que fa a criteris econòmics, una persona sola ha de tenir uns ingressos mínims de 18.000 € anuals i uns ingressos màxims de 60.456,53 €.
“No té cap sentit”
Un dels col·lectius que ha alçat la veu és el Sindicat de Llogateres. El portaveu, Enric Aragonès, denuncia a betevé que no té cap sentit que l’Ajuntament sortegi aquests immobles: “Difícilment són habitatges per pensar-hi un projecte de vida“.
Aragonès també critica que el consistori, que hauria de vetllar per garantir el dret a l’habitatge, “vagi als mínims legals per tenir cèdula d’habitabilitat” (20 m² en finques preexistents) perquè “diu poc a favor d’un programa d’habitatge públic”.
I rebla: “Ens fem un flac favor si acceptem qualsevol condició perquè, si ho normalitzem, tindrem un parc d’habitatge públic molt deficient“.
L’explicació: són finques antigues
A diferència de les promocions d’Illa Glòries i Illa Acer, els immobles del Raval no són de nova construcció, sinó que l’Ajuntament està rehabilitant les finques originals.
Per això, fonts municipals expliquen que el punt de partida són habitatges en molt mal estat, molt petits i sense ascensor.
En aquest sentit, expliquen que la finca del carrer de l’Hospital és centenària i que, en origen, tenia 21 pisos. Amb la rehabilitació que ha fet el consistori s’han reduït a 17 per aconseguir 13 pisos de dos dormitoris, entre 40,4 m² i 62 m².

Ara bé, també admeten que l’estructura consolidada ha fet impossible la modificació dels quatre pisos restants, que, de manera excepcional, s’han mantingut en disposició d’edifici readaptat o loft.
Les mateixes fonts municipals conclouen que dels més de 13.000 pisos públics que gestiona l’Institut Municipal de l’Habitatge i la Rehabilitació de Barcelona (IMHAB), només 13 tenen superfícies útils per sota dels 30 m². Tots són en finques antigues de Ciutat Vella.